ARKKITEHTITOIMISTO SEVERI BLOMSTEDT
Munkkiniemen puistotie 6 A 21, 00330 Helsinki / 0400 655 446 / severi.blomstedt@iki.fi / www.arkblomstedt.fi
Valikko
Valikko
Etusivu
Uusimmat kohteet
Asuinrakennukset
Muu rakentaminen
Korjausrakentaminen
Muu suunnittelu
Arkisto
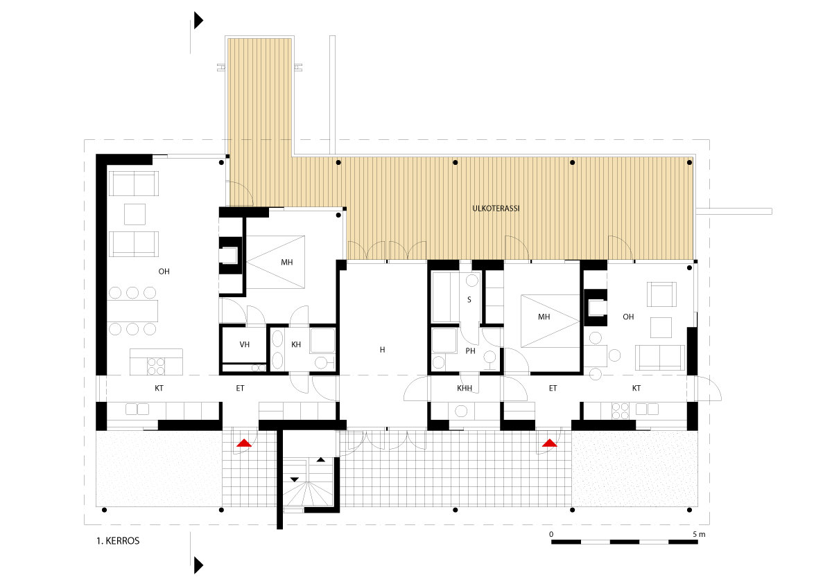
HUVILA JALAS
Puurakenteinen talviasuttava huvila.
Sijainti:
Vihti
Valmistumisvuosi:
2014
Tilaaja:
Yksityinen
Laajuus:
150 k-m2
foto: Jari Jetsonen
foto: Jari Jetsonen
foto: Jari Jetsonen
foto: Jari Jetsonen
foto: Jari Jetsonen
foto: Jari Jetsonen
foto: Jari Jetsonen
foto: Jari Jetsonen
foto: Jari Jetsonen
foto: Jari Jetsonen
foto: Jari Jetsonen
foto: Jari Jetsonen
foto: Jari Jetsonen
foto: Jari Jetsonen
foto: Jari Jetsonen
❮
❯
Takaisin