ULLAKKOASUNTO, KAJANUKSENKATU 7
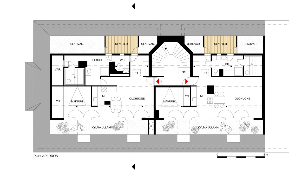
Ullakkoasunnot
2 kpl 2H + KT + S
2 kpl 2H + KT + S
| Sijainti: | Helsinki, Kajanuksenkatu 7 |
| Valmistumisvuosi: | 2003 |
| Tilaaja: | As Oy Lepolankuja 7 ja PakRak Oy |
| Laajuus: | a) 66 h-m2, b) 59 h-m2 |
| Sijainti: | Helsinki, Kajanuksenkatu 7 |
| Valmistumisvuosi: | 2003 |
| Tilaaja: | As Oy Lepolankuja 7 ja PakRak Oy |
| Laajuus: | a) 66 h-m2, b) 59 h-m2 |