TEOLLISESTI VALMISTETTU PIENTALO
Puurakenteinen asuintalo
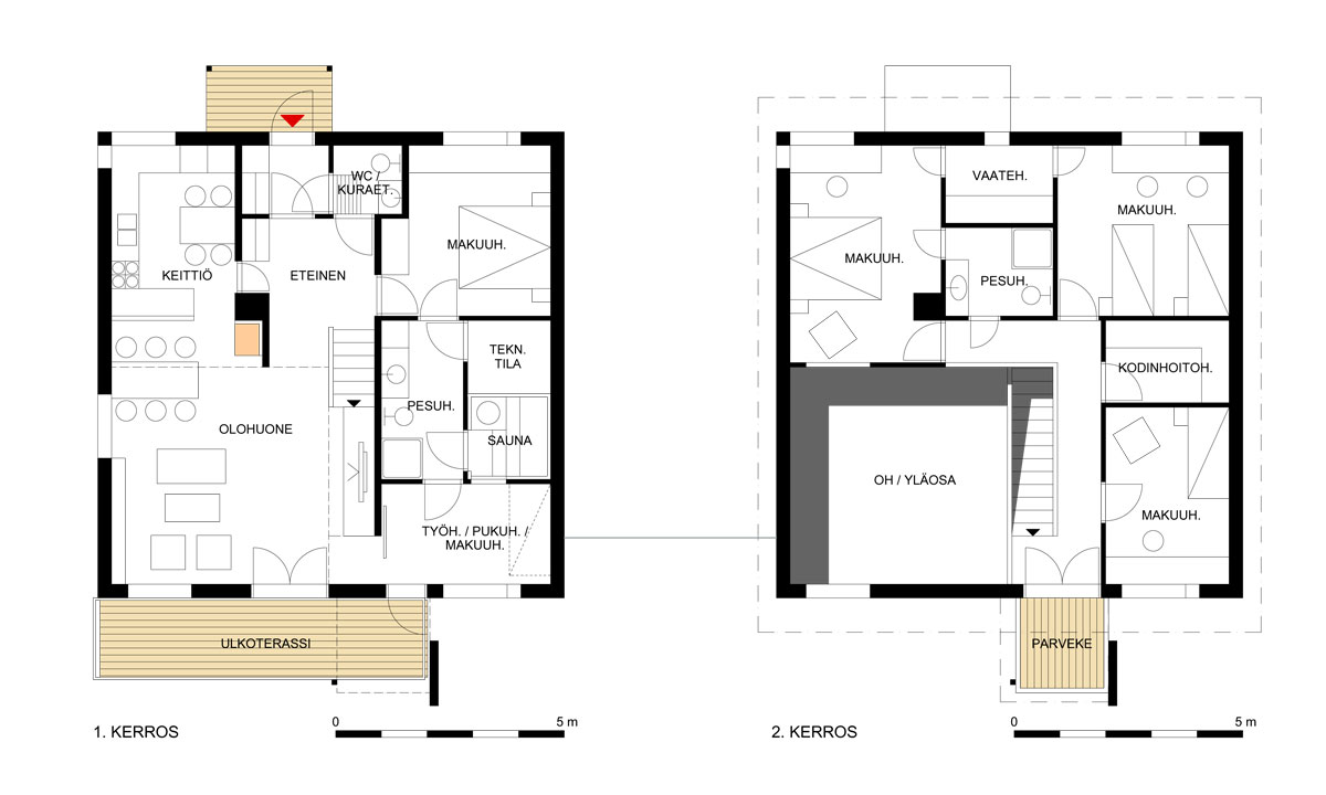
6H + K + KHH + S
6H + K + KHH + S
| Sijainti: | Oulu, Metsokangas / Pietari, Vsevolozhski (Kymleno) |
| Valmistumisvuosi: | Oulu: 2008, Pietari 2009 |
| Tilaaja: | Finndomo Oy |
| Laajuus: | 182 k-m2 |













