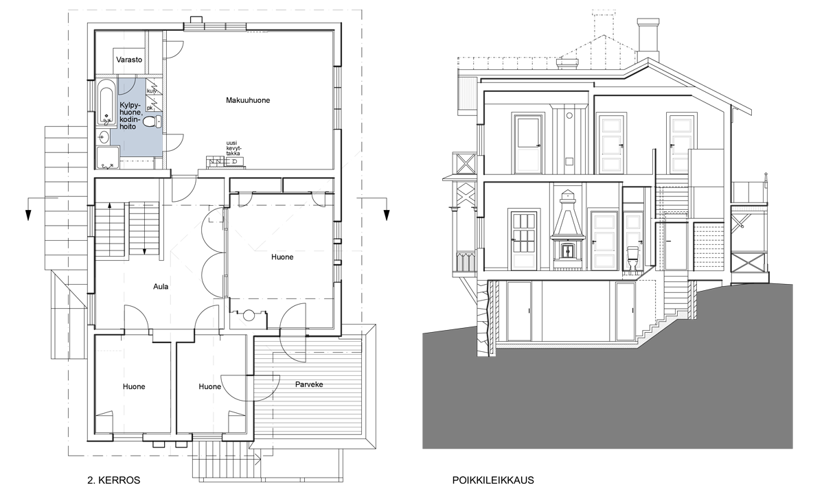
VILLA HONKASYRJÄ / KUNNOSTUS- JA MUUTOSSUUNNITELMA
Vanha hirsi-puurankarakenteinen asuintalo
| Sijainti: | Helsinki |
| Valmistumisvuosi: | 2020 |
| Tilaaja: | Yksityinen |
| Laajuus: | 261 k-m2 |
| Sijainti: | Helsinki |
| Valmistumisvuosi: | 2020 |
| Tilaaja: | Yksityinen |
| Laajuus: | 261 k-m2 |