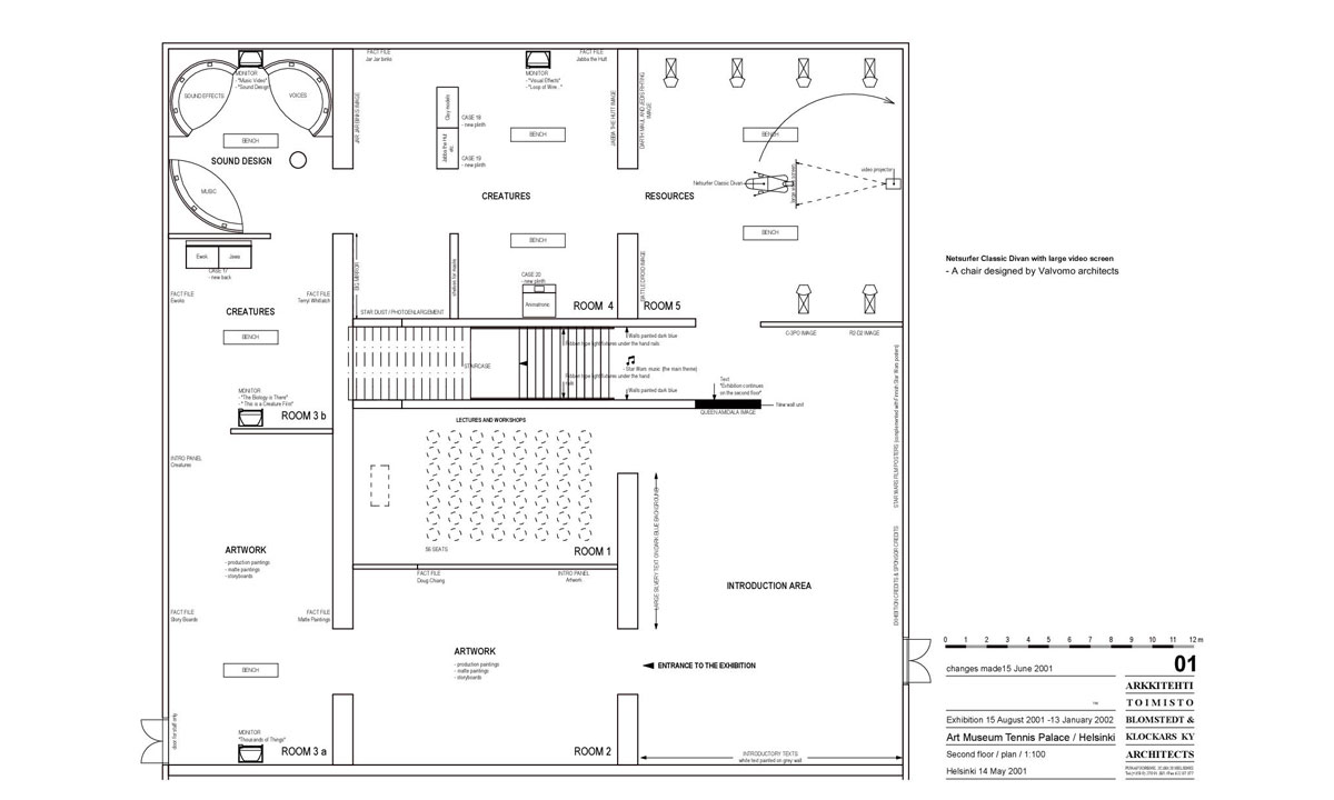
THE ART OF STAR WARS
Näyttely
| Esityspaikka: | Helsingin kaupungin taidemuseo, Tennispalatsi |
| Valmistumisvuosi: | 2001 |
| Tilaaja: | Helsingin kaupungin taidemuseo |
| Helsingin esityksen yleissuunnittelu: | Severi Blomstedt |
| Näyttely kuvaa monipuolisesti Star Wars -elokuvien tekoa. Se on myös kunnianosoitus niille taiteilijoille ja elokuvan ammattilaisille, jotka ovat olleet mukana luomassa George Lucasin Star Wars -maailmaa. Näyttelyn tuottamisesta ja kansainvälisestä kierrosta vastaa Lucasfilm Ltd sekä Barbican Center Lontoosta. | |















